Guide Price £300,000 - £325,000 Boasting Immaculate Presentation, Location & Considered Design
Greenfinches, Hempstead,
Guide Price
£300,000
2
1
1
SSTC



Property Video
My Property
WHAT’S MY HOME WORTH?FEATURES
Stunning Extended Starter Home
2 Bedrooms, Stylish Bathroom & Impressive Interiors
A Perfect FTB or Downsize
Drive To The Front & Enclosed Garden To Rear
Popular Hempstead Location
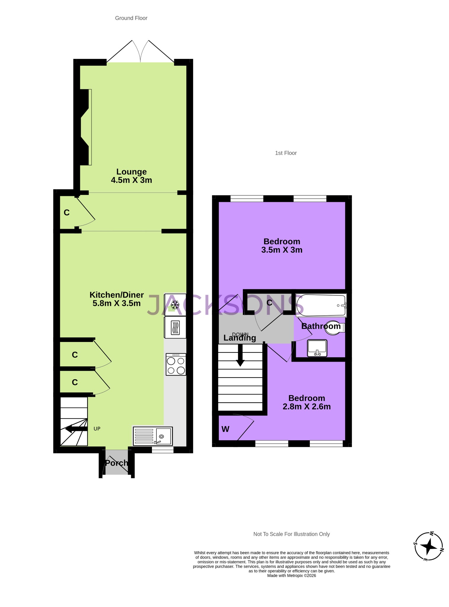
624 sq. f (58 sq. m) of Accomodation
EPC Rating C (74)
Medway Council Tax C
PROPERTY INFORMATION
Guide Price £300,000 - £325,000 Upon arrival, you are greeted by a convenient driveway to the front, providing essential off-road parking. Step inside, and the quality of the renovation immediately becomes apparent. The property extends to a comfortable 624 sq. ft. (58 sq. m) of thoughtfully arranged accommodation, designed for contemporary living.
The ground floor features a welcoming open plan arrangement, offering a versatile space for relaxation and entertaining. The impressive interiors are characterised by a contemporary aesthetic, with attention to detail evident in every corner. The layout flows seamlessly, creating an inviting atmosphere that feels both spacious and homely.
On the first floor, you will find two bedrooms, each offering a peaceful retreat. These rooms are complemented by a truly stylish bathroom, featuring modern fixtures and fittings that exude sophistication. This impressive bathroom serves both bedrooms, ensuring comfort and convenience.
One of the standout features of this home is the evident pride of ownership. The sellers have gone above and beyond to ensure every aspect of the property is in pristine condition, from the tasteful decor to the high-quality finishes. This means prospective buyers can move straight in without the need for immediate renovations, making it an ideal choice for those looking for a hassle-free purchase.
Externally, the property benefits from an enclosed garden to the rear, providing a private outdoor space perfect for alfresco dining, gardening, or simply unwinding. This low-maintenance garden complements the home beautifully, offering a tranquil escape. There is also a driveway to the front.
Located in the popular Hempstead area, residents benefit from excellent local amenities, including shops, schools, and transport links, making it a highly convenient place to live.
This stunning extended starter home represents a fantastic opportunity for first-time buyers eager to step onto the property ladder or for those looking to downsize without compromising on style or quality. With its immaculate presentation, desirable location, and thoughtful design, early viewing is highly recommended to fully appreciate all that this exceptional property has to offer.
MEASUREMENTS All Measurements Are Approximate. These sales particulars have been prepared by Jacksons Estate Agents upon the instructions of the vendor(s). Services, fittings, and equipment referred to within the sales particulars have not been tested and no warranties can be given. Accordingly, the prospective buyer(s) must make their own enquiries regarding such matters. The measurements for the floor space have been taken from the information on the EPC.
ADDITIONAL SERVICES To enable you to budget for your move, we can provide you with a complete breakdown of all expenses associated with moving, including legal fees, survey fees, early repayment charges, removal fees and all aspects of mortgage charges.
Property Type
House
Property Style
Terraced
Parking
Drive
Floor Area
624 Sq. F (58 Sq. M)
Tenure Type
Freehold
Council Tax Band
C
Stamp Duty Calculator
I am...
Property Price
£Mortgage Calculator
Property Price
£Deposit
£10%
Lenders may expect more than a 10% deposit
Annual Interest
Repayment Period (Years)
Monthly repayments: £1,741
Need more info? See ourMortgage guides and calculators.







